
Le grondaie della struttura in acciaio sono un componente cruciale del sistema di drenaggio del tetto di un edificio. La loro funzione principale è quella di raccogliere l'acqua piovana dal tetto, dirigerlo in tubi verticali e quindi scaricarlo al sistema di drenaggio esterno, impedendo che si erodifichi direttamente le pareti o si ammorbino le basi. La progettazione e l'installazione del prodotto di Liweiyuan sono caratterizzate da alta resistenza e peso leggero, garantendo un drenaggio regolare e una durata eccezionale.
Le grondaie della struttura in acciaio sono un componente cruciale del sistema di drenaggio del tetto di un edificio. La loro funzione principale è quella di raccogliere l'acqua piovana dal tetto, dirigerlo in tubi verticali e quindi scaricarlo al sistema di drenaggio esterno, impedendo che si erodifichi direttamente le pareti o si ammorbino le basi. La progettazione e l'installazione del prodotto di Liweiyuan sono caratterizzate da alta resistenza e peso leggero, garantendo un drenaggio regolare e una durata eccezionale.
La grondaia della struttura in acciaio di Liweiyuan è realizzata in materiali resistenti alla corrosione e resistenti all'impatto.
Il nostro prodotto è zincato a caldo, offrendo un'eccellente resistenza alla corrosione, a basso costo e una lunga durata. Disponibile in spessori di 1,5-2,5 mm, è adatto per la maggior parte delle applicazioni.
Realizzato in acciaio inossidabile, questo prodotto offre resistenza alla corrosione ed è particolarmente adatto per ambienti costiere o umidi. Disponibile in spessori di 1,0-2,0 mm, offre un prezzo più elevato ma una lunga durata.
I nostri prodotti in acciaio con rivestimento a colori si basano su acciaio zincato, rivestito con un rivestimento resistente alle intemperie, come poliestere o fluorocarburo, sia per la resistenza alla corrosione che per gli effetti decorativi. Disponibili in spessori di 1,2-2,0 mm, sono adatti agli edifici che richiedono un alto livello di fascino estetico.
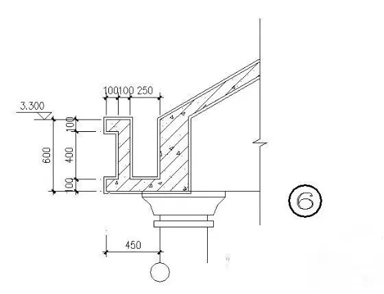
La forma strutturale della grondaia della struttura in acciaio deve essere adattata alla pendenza del tetto e al design della grondaia. I tipi comuni includono a forma di U e a V. Il processo di installazione è il seguente:
Le nostre grondaie per la struttura in acciaio usano staffe per grondaie in acciaio angolare per fissarle alle travi o alle virine della struttura in acciaio. La spaziatura della staffa è di 600-1000 mm per garantire una distribuzione uniforme dello stress attraverso la grondaia.
Le grondaie finite sono pre-size e collegate in loco usando connettori o saldatura. Il sigillante è richiesto alla giunzione tra la grondaia e il decking del tetto.
Possiamo installare un lampeggiante sopra il decking del tetto. L'estremità inferiore della grondaia deve essere posizionata sotto il decking del tetto e sigillata con sigillante. I fori di drenaggio devono essere forniti nella parte inferiore della grondaia, principalmente per il collegamento ai riser dell'acqua piovana.
Il nostro processo di produzione della struttura della struttura in acciaio include il taglio in base alle dimensioni del disegno, alla flessione, alla pittura, all'ispezione dei prodotti finiti, all'imballaggio e alla spedizione. Le grondaie della struttura in acciaio di Liweiyuan sono progettate e installate per garantire la resistenza alla corrosione, il drenaggio liscio e la durata, garantendo un drenaggio efficiente.